Jefferson
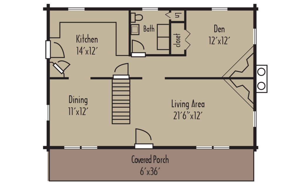
The Jefferson model is a grand design and clearly delineates each room.
This grand design clearly delineates each room, including a den, making each a separate space to use and enjoy. Each of the four ample sized bedrooms upstairs makes it perfect for large families or frequent overnight guests.
$1 Shipping in Eastern & Central Time Zone.
Call for shipping information to other areas: 1-800-308-7505
Package Details
Bedrooms
4
Bathrooms
2.5
Footprint
24′ x 36′
Square Feet
1,728
Tradesman Style Pricing
Pre-cut Log Package
$87,900
Shell
$120,150
6×8 Complete Package
$172,000
8×8 Complete Package
$185,800
Cedar
Call for Pricing
10×8 Log
Call for Pricing
6×12 Log
Call for Pricing
8×12 Log
Call for Pricing
Craftsman Style Pricing
Pre-cut Log Package
$102,250
Shell
$134,900
6×8 Complete Package
$186,600
8×8 Complete Package
$201,550
Cedar
Call for Pricing
10×8 Log
Call for Pricing
6×12 Log
Call for Pricing
8×12 Log
Call for Pricing


Photo Gallery
Pictures may vary from design




